Каркасный сарай: общая информация
Как дешево построить сарай своими руками? Минимальные финансовые затраты и короткие сроки строительства — ключевые особенности каркасной технологии. Так что это не самый плохой вариант, если необходимо возвести помещение быстро и дешево.
Каркасная конструкция, выполненная из дерева, очень популярна. Древесина — это прочное, надежное и долговечное сырье, обладающее высокими теплоизоляционными свойствами. Однако материал необходимо обрабатывать специальными антисептическими растворами, чтобы не допустить возникновение плесени и гнили. Продлить срок эксплуатации древесины можно, если покрыть ее слоем краски или лака.
Однако каркас здания может быть выполнен не только из древесины. Металлический «скелет» здания возводится, если необходимо построить сарай из профилированного листа (профнастила).
Внешний вид и долговечность хозяйственного помещения зависят от стоимости и качества строительных материалов. Тогда следует задать вопрос: «Из чего дешево построить сарай?». В этом случае рекомендуется покупать необрезные доски сосны, ели или березы.

Какая крыша лучше
При монтаже стропильной системы используются такие же материалы, как и для каркаса. После изготовления стропильной системы, ее укрепляют с помощью обрешетки, которую выполняют доской-дюймовкой. Не следует использовать обзол, поскольку такие доски быстро приходят в негодность.
Чтобы сделать крышу в сарае, можно установить:
- Односкатную кровлю, когда крыша опирается на противоположные стены, причем высота сторон имеет различную высоту. Односкатная кровля считается оптимальной, если длина пролета не превышает 6-ти метров.
- Двускатную кровлю, когда крыша опирается на противоположные стены на одинаковой высоте, при этом скаты крыши соединяются в верхней точке, называемой коньком. Применяется при ширине пролета, большем, чем в 6 метров.
Угол наклона скатов крыши зависит от таких факторов, как интенсивность нагрузок ветра и снега.
Например:
- Чем интенсивнее ветровые нагрузки, тем меньше делается уклон скатов.
- Чем весомее снеговые нагрузки, тем большим должен быть уклон, чтобы снег, который скапливается на крыше, быстрее сходил.
Кроме этого, необходимо учитывать рекомендации производителя кровельных материалов.
Сарай с односкатной крышей
Поскольку сараи большими не строят, то можно воспользоваться односкатной крышей, но при этом необходимо обеспечить минимальный угол наклона для конкретного вида кровельного материала.

Например:
- Для шифера потребуется не меньше 20 градусов.
- Для мягкой кровли можно обойтись и 5 градусами.
- Для профнастила этот параметр составляет 8 градусов.
- Для черепицы это не меньше 25 градусов.
Если сооружается сарай из бетонных блоков, то на противоположных стенах следует установить и закрепить опорный брус-мауэрлат. Что касается каркасных конструкций, то роль опорных брусьев выполняет верхний обвязочный брус.

Стропильные доски монтируют, начиная с противоположных стен. Шаг укладки стропил зависит от величины брусьев, поэтому для большей надежности все элементы соединяются попарно. Крепление к опорному брусу осуществляется с помощью врезки, а также с помощью металлических накладок.

Заключительный этап – монтаж кровельного материала:
- Шифер крепится гвоздями к верхней волне, металлочерепица – кровельными саморезами к нижней.
- Листы укладываются с продольным и поперечным нахлыстом.
- Для лучшей герметизации стыков применяются прокладки из ЭПДМ-резины.
- Минимальный вес кровли допустим для шифера 50 мм, для тонких листовых материалов 100 мм.
Сарай с двускатной кровлей
Сборка стропильной системы из 2-х скатов по технологии ничем не отличается. Отличия заключаются лишь в том, что формируется коньковый узел:
- С накладкой в верхней точке угла.
- С дополнительным распорным ригелем.
- С креплением стропил в точке конькового прогона.
- С примыканием к вершине конькового бруса.
Двускатная крыша хотя и сложнее, но зато она более устойчивая к ветровым нагрузкам. Кроме этого, под кровлей достаточно пространства для использования по различному назначению.
Схема сборки двускатной крыши сарая, размерами 3,5х3,65 м
про село — МНОГОФУНКЦИОНАЛЬНЫЙ САРАЙ / КАК СДЕЛАТЬ СВОИМИ РУКАМИ ЛЕГКО / сельхоз влог / ВСЁ ПО УМУ
Watch this video on YouTube
Хозблок 5х3 своими руками
Watch this video on YouTube
▲Frame house 500$\Каркасник своими руками за 30 тыс.руб
Watch this video on YouTube
Как рассчитать оптимальные размеры сарая и превратить его в универсальный хозблок
Как видно из написанного выше, под словом «сарай» каждый застройщик подразумевает свою постройку. В одном случае нужен небольшой хозблок для хранения садового инвентаря и разной мелочи, а в другом сарай разрастается до размеров дома. Но есть один нюанс, который их объединяет. Это — удобство использования.

Поэтому, вместо того, чтобы брать из интернета или у соседа размеры сарая, лучше самостоятельно определиться, для чего вам нужен сарай, и что в нём планируете хранить.

Вариантов такого планирования может быть масса. Например, на начальном этапе строительства в сарае надо разместить инструмент, какие-то строительные материалы, оборудовать спальные места.

В дальнейшем сарай может трансформироваться и из просто «кладовки» на участке — стать мастерской, а также местом для хранения дров или пеллет.

Или может превратиться в «гараж» для хранения разной техники — мотокультиватора, газонокосилки, вибротрамбовки, снегоуборочной машины и т.д.

У любого дачника есть базовый набор инструментов и сельхозинвентаря, без которого не обойтись на участке. Именно от этого списка и надо отталкиваться при расчёте минимальных размеров сарая.
Например, для хранения простого набора садового инструмента — лопат, грабель, топоров, тяпок, небольших лопаток, пил, веников — можно отвести 2 кв. м.

Если планируете активно заниматься огородом и хранить в сарае удобрения, тепличные материалы, увеличивайте площадь до 3-4 кв. м.

Если есть электрические инструменты: бензотриммер, мойка высокого давления, садовые насосы, шланги, наборы обычных инструментов, нужно ещё больше пространства – 5 и больше квадратных метров.

Практика показывает, что усреднённой и оптимальной величиной для хозяйственной постройки можно принять габариты 3х6 метров при высоте в 2.5 м.

В этом случае в сарае получится разместить длинномерные строительные материалы — доски и арматуру. Обустроить небольшое рабочее место для домашнего мастера, поставить стеллажи для хранения метизов и разнообразных, необходимых в быту вещей.

При строительстве сарая не забываем об обустройстве небольшой террасы с навесом, где можно работать на улице в непогоду или просто отдохнуть, сидя вечером за столом.

Важный этап — зонирование сарая. Для этого разбиваем постройку на ряд помещений — блоков, в каждом из которых хранится своё. Например «грязные» вещи — садовую тачку, лопаты, грабли, заступы, поливочные шланги, т.е. то, что необходимо для работы с землёй, лучше не тащить в хозпостройку, а разместить сбоку в небольшом отсеке с отдельными дверцами.

Отводим место под рабочий стол, полки со столярными и слесарными инструментами и местами хранения болтов, гаек, гвоздей, шурупов и т.д.

Правило: то, что требуется в первую очередь и чаще всего, ставим ближе к входу. То, что используется редко или в зависимости от сезона, можно расположить в глубине сарая у дальней стены.

Если в сарае планируете складировать длинномерные материалы, то дверь, для удобства их затаскивания, нужно делать не в середине строения, а сбоку — справа или слева, или в торце. Если не «пожадничать» на высоте сарая, то чердачок также может стать оптимальным местом для хранения остатков арматуры, досок, фанеры, труб.

Т.е. всего того, что нужно не часто, но в случае необходимости можно легко достать. Кроме этого, ещё до строительства продумываем, будет ли утепляться сарай. В наших климатических условиях это позволит работать в хозпостройке поздней осенью и зимой.
Выбор подходящего места

Сарай можно совместить с другими хозяйственными постройками, а также возвести, как отдельный объект. При этом придется воспользоваться рядом рекомендаций:
- Сарай должен удобно располагаться по отношению к другим постройкам.
- Не располагаться на участке, отведенном под садово-огородные культуры.
- Не нарушать общий принцип организации ландшафта.
- Не противоречить требованиям по санитарным и пожарным нормам.
Первые три требования хозяин вправе разрешить самостоятельно, а вот, что касается последнего, то здесь нужно учитывать ряд требований. Особенно это актуально в том случае, если в сарае предполагается содержать мелких домашних животных или птицу.
Согласно требованиям:
- Хозпостройка должна находиться на удалении 4-х метров от соседнего владения.
- Должна располагаться на расстоянии 15 метров от жилого дома.
- На расстоянии, не меньше 30 метров от источника питьевой воды.
Желательно, чтобы сарай располагался на возвышенности, иначе его могут затопить талые или дождевые воды. Сарай можно расположить так, чтобы он служил защитой от ветра для садово-огородных культур.
Необходимо также учитывать тот факт, что сарай может мешать соседям, закрывая их участок от солнечных лучей. Если это случится, и соседи пожалуются, то суд заставит снести постройку или перенести ее в другое место.
Этапы изготовления каркаса
- Для основы каркаса изготавливается рама на фундаменте поверх гидроизоляции по конфигурации строения, обычно прямоугольник, тщательно промеряются диагонали и стороны, выравнивается горизонтальное положение.
- Укладываются лаги для пола. Для столбчатого или свайного фундамента сечение лаг будет больше, а шаг между ними следует сократить. При строительстве на плитном основании устройство пола необязательно.
- Монтируются угловые, затем промежуточные стойки. Расстояние между ними определяется в зависимости от материала обшивки. Доска, горбыль, металл, профлист – 1,5 м, ОСБ – строго по размерам плит. Выверяется вертикальное положение стоек, особенно угловых. До фиксации каркаса их можно временно укрепить укосинами.
- Устанавливается верхняя обвязка.
- Монтируются стропила и обрешетка крыши длиной больше, чем само строение на 30-50 см с каждой стороны для свеса кровли.
- При необходимости набивается обрешетка на стенах.
Размеры
Подбор материала и проектирование хозпостройки – вещи взаимосвязанные. Большинство готовых блоков, а также деревянные конструкции, имеют габариты 100х100 либо 50х100 мм. Исходя из этого, можно легко оценить конечную потребность в материалах. Но не надо забывать об оставлении дверных и оконных проемов, о конструкционных зазорах. Точные габариты подбираются в соответствии с потребностями.

Простой инвентарь для сада или дачи обычно хранят в сооружениях величиной 150х150 см. Но когда требуется создать особые полки для хранения, длина постройки увеличивается до 200-250 см. А вот садовая техника и остальной объемный инструмент требуют нарастить ее уже до 300 см. В разряд простого инструмента относятся грабли и тяпки, лопаты, мотыги. Даже в столь облегченной постройке можно смонтировать крючки либо подставки для подвешиваемых слесарных и столярных инструментов.


Пользователи портала делятся опытом планирования и строительства удобной и многофункциональной хозяйственной постройки.
На первый взгляд кажется, что построить сарай — просто. Выбрал понравившуюся картинку в интернете или чертежи приглянувшегося хозблока — и возводи себе на здоровье. Тем более, что сделать сарай можно из бруса, по каркасной технологии или даже каменный — из кирпича или газобетона. Но, за кажущейся лёгкостью таится главный «подводный камень». Сарай с картинки — не ваш, а «того парня». Подойдёт ли он именно вам, будет ли удобно пользоваться этой хозяйственной постройкой, поместится ли в неё всё, что задумано? Ответы на эти вопросы, и не только, вы узнаете из нашей статьи. А именно:
- Для чего нужен сарай.
- Как определить оптимальные размеры хозяйственной постройки.
- Как превратить сарай в многофункциональное строение.
- Из чего и на каком фундаменте строят хозблоки.
Каркасное строение












Для этого понадобится выполнить следующие действия:
- забиваются опорные сваи, являющиеся несущей конструкцией для всего строения;
- на них размещаются металлические швеллера, которые выступают в роли основания конструкции;
- далее возводится каркас из металлического профиля;
- с наружной стороны крепится сайдинг;
- внутри стен размещается теплоизоляционный материал;
- внутренняя часть стен зашивается гипсокартоном.

Перекрытие производится аналогичным способом. В его основе находится металлический каркас, с внутренней стороны крепится гипсокартон, в качестве утеплителя используется стекловата или аналогичный материал. Далее размещается пароизоляция и стропила с кровельным материалом.

Мы рассмотрели несколько вариантов, как сделать сарай своими руками. Придерживаясь поэтапной инструкции не составит труда своими силами соорудить качественную постройку, которая будет полностью отвечать заявленным требованиям.

Технологии и материалы
Как правило, владельцы дачных или приусадебных участков не готовы тратить большой бюджет на строительство сарая, поэтому для используются простые технологии и экономичные материалы.
Наиболее часто хозпостройка возводится:
- каркасным методом из дерева или деревоматериалов;
- из бетонных блоков или кирпича.
Сарай может быть отдельно стоящим или сблокированным с гаражом, баней, другими зданиями. Пристройка с одной стороны позволяет сэкономить материалы, с другой — накладывает ряд ограничений. Нельзя ослаблять грунт рядом с фундаментом существующего строения, снижать несущую способность стен и перекрытий.
Каркасный сарай
Преимущества этой технологии — высокая скорость сборки и экономичность материалов. На первом этапе собирается каркас, затем проводится утепление и обшивка. Возможен вариант «холодной» постройки без теплоизоляции, чтобы хранить инвентарь или содержать быстрорастущие виды живности в теплый сезон.
Для строительства используются:
- брус, доска, рейка;
- OSB;
- влагостойкая фанера;
- вагонка;
- утеплители — минеральная вата, пенополистирол, пенопласт.
Каркасная хозпостройка не требует мощного фундамента. Достаточно установить бетонные столбики или смонтировать винтовые металлические сваи.
Фундамент сарая на кирпичных столбиках
Каркас можно изготовить не только из дерева, но и металла, а затем обшить его листовыми материалами и утеплить. Такой вариант подходит для тех, кто владеет сварочным аппаратом.
Металлический каркас сарая
Для отделки каркасного сарая можно израсходовать остатки после строительства дома, беседки, забора. Широко используется окрашивание, обшивка сайдингом, вагонкой, профнастилом и т.д.
Всю древесину предварительно нужно обработать антисептиками и антипиренами. Это предупредит гниение и быстрое возгорание пиломатериалов, продлит срок службы хозпостройки.
Сарай из блоков или кирпича
Преимущества таких сооружений — всесезонное использование. Для строительства применяются блоки из легкого бетона (пенобетона, шлакобетона, керамзитобетона, газобетона) с низкой теплопроводностью, поэтому стены сарая хорошо сохраняют тепло.
Из недостатков — необходимость в прочном фундаменте (ленточном, плитном), высокая трудоемкость и материалоемкость. Помимо этого капитальный сарай по закону подлежит регистрации, что предполагает дополнительные затраты на оформление и налоги.
Тем не менее, блочные или кирпичные постройки очень популярны. Они намного прочнее и долговечнее каркасных, не боятся влажности (при соответствующей наружной отделке) и огня.
Тип каркаса
Практически все сараи являются каркасными конструкциями, то есть собираются из вертикальных и горизонтальных, а также наклонных (стропила) элементов, и далее обшиваются для защиты от ветра и холода. Используют два вида каркаса – деревянный и металлический. При этом с расчетом на легкую (без существенного утепления) крышу применяют:
- для стоек – брус 100х100 мм, 125х100 мм, 150х100 мм, профилированную трубу 50х50 мм, 60х60 мм, реже 40х60 мм;
- для поперечной обвязки – брус или трубу с сечением на 15…25% меньше, чем для стоек;
- для стропил (прогонов) крыши – брус или трубу, уголок с тем же сечением, что и для обвязки.
Дополнительно для усиления конструкции применяют раскосы, подкосы и крестовины.
Синим цветом показаны стойки, зеленым – нижняя обвязка с опорами для настила пола, желтым – верхняя обвязка с укосинами и стропилами
В каркасном сарае не обязательно нужна такая же жесткость и прочность конструкции, как в каркасном доме, но уменьшать приведенные значения сечений бруса или профильной трубы нежелательно (кроме тех случаев, когда будет принята максимально легкая обшивка и крыша – например, из поликарбоната).
Соединение элементов каркаса выполняется с помощью уголков и пластин (брус), сварки и винтовых соединений на уголках и пластинах (металл).
Варианты соединения деревянных элементов каркаса
Соединения металлического каркаса на уголках и болтах
Соединение сваркой
Автомобиль своими руками: Сам себе конструктор
В автомобильной истории советского периода был один отрицательный момент: ограниченный модельный ряд. Но не только это вынуждало граждан делать автомобили своими руками. Энтузиастам был важен сам процесс, однако и результаты часто оказывались достойными. Некоторые самоделки дожили до наших дней, и «Автоцентр» смог познакомиться с ними.
В автомобильной истории советского периода был один отрицательный момент: ограниченный модельный ряд. Но не только это вынуждало граждан делать автомобили своими руками. Энтузиастам был важен сам процесс, однако и результаты часто оказывались достойными. Некоторые самоделки дожили до наших дней, и «Автоцентр» смог познакомиться с ними.
Движение автосамодельщиков партия и правительство взяли под свое крыло и нарекли его «Самавто», справедливо рассудив: творческий досуг в гараже куда полезнее интеллигентских посиделок «на кухне». Человек же, создавая машину по собственным чертежам, преследовал две цели – заполучить новый автомобиль задешево и без очереди, а также самореализоваться. На самом же деле временные и денежные затраты на постройку новой машины были никак не меньше, нежели на приобретение серийной.
Перед теми, кто решился на непростой шаг – сделать авто своими руками, в стране вечного дефицита проблемы выбора комплектующих не существовало. Концептуальные решения были почти стандартными: например, кузов в большинстве случаев мастерили из стекловолокна и эпоксидных смол. Этот материал легко формовался и обрабатывался, позволяя без дополнительного оборудования достигать требуемых форм, он был крепким и устойчивым к коррозии. И все же некоторые суперотчаянные умельцы на деревянных болванках выстукивали металлические кузовные панели. Люди, уже построившие самодельные машины, писали книги, в которых делились опытом («Я строю автомобиль», «Автомобиль своими руками»).
Кроме дефицита запчастей, было еще одно ограничение полета фантазии для народных конструкторов. Специальные Правила регламентировали основные параметры силового агрегата, габариты автомобиля, радиусы закруглений бамперов и углов кузова и т. д. Что касается двигателя, то его удельная мощность не должна была выходить за рамки 24–50 л. с. на тонну веса машины. Поэтому по весу для большинства авто подходили только моторы от «Запорожцев»: 0,9 л (27 л. с.) и 1,2 л (27–40 л. с.) или, от силы, от ВАЗ-2101 – 1,2 л (64 л. с.). Интересно и то, что минимально допустимый клиренс равнялся 150 мм. Одним словом, упомянутые Правила подчинялись только безопасности и не содержали идеологического подтекста. Так что Госавтоинспекция разрешала строить любой тип кузова. И часто «самоделкины» выбирали откровенно буржуазные варианты кузовной компоновки – купе, кабриолет, минивен, реже универсал.
«Спорт-900» (1969 г.)
Отличительная особенность этого купе с компоновкой «2+2» (два взрослых и два детских места) в том, что он является первой серийной самодельной машиной в СССР (изготовлено как минимум 6 штук). Стоит отметить, что кроме комплектных авто, было изготовлено и несколько стеклопластиковых заготовок кузовов. Об этом ярком представителе всесоюзного движения «Самавто» много писала пресса тех времен. Еще бы, стильное заднемоторное купе было создано на базе 965-го «Запорожца» – самого примитивного и непрестижного автомобиля своего времени.
http://novate.ru/blogs/280814/27494/http://www.zr.ru/content/articles/906647-selfikary-10-samodelnykh-avto/http://fishki.net/1711487-10-samodelnyh-avtomobilej-kotorye-prosto-voshititelny.htmlhttp://auto.ironhorse.ru/homemade-cars_8319.htmlhttp://xn--100—j4dau4ec0ao.xn--p1ai/category/avto/http://www.autocentre.ua/opyt/tehnologii/avtomobil-svoimi-rukami-sam-sebe-konstruktor-268036.html
Сообщества › Музей Bullshit-тюнинга › Блог › Стильный сарай.

Комментарии 69
Самый крутой двухдверный универсал…
я думаю буллшит здесь только занижение.
однозначно не булшит!)
Эх…делали бы таких с завода…
нормально. движок походу под капот перенесли
не в то сообщество етот динозаврик попал!Крут до ПИСИЕЗДИЕЦА!
Выглядит органично и даже симпатично, как ни странно
хм, интересно, как решили вопрос с двигателем))
Если не фотожоп, то ваще круто!
двиг я так понимаю под пол затолкали чтоли
совсем этот «старичек» не в тему сюда попал.
Где то я читал про такие сараи, кажется это завод.
а где у неё двиг?
А мне нравицца, вот только задних дверей пипец как не хватает )))
В это и есть шарм:)
А мне нравицца, вот только задних дверей пипец как не хватает )))
Низкий ЗАЗ, радует глаз
где и у обычного ))
Это заводское исполнение, а низкая из-за просевших пружин. Пол в багажник как у фольксвагена т2. Там тоже мотор сзади под полом багажника. Ничего тут булшитного нет, тема говно.
У Т2 опозит! У Жужи V4.есть разница?
Нету, что то, что другое, расположено под полом. Я сталкивался с таким зазом. И даже нашёл в нете статью о нем. Запоры ещё и пикапы были.
Только у пикапа полноценна крышка над двигателем (как у обычных)
Выглядит хорошо, необычно Жаль что фотошоп.
Конкретно это фото 100%-ый фотошоп. Можете не спорить по этому поводу.А так дизайн вполне интересный. Только двигатель нужно вперед переносить иначе смысла в такой переделке нет )
ну или в центр…чтобы был беспощадный гоночный «сарайчик».
шоп, ни шоп, а я люблю универсалы, даже этот ушастик симпатишно выглядит. мне нравится.жаль, что нет таких(((
Да к в чем проблема.Возьми да изготовь себе такого:)
у меня уже есть немецкого производства, а жижик я бы взял себе не за дорого в качестве поджопника. помню такие времена, когда его за 1000 деревянных можно было купить
да и час можно.только что это будет:)
задние стекла немного другие.Но в целом в этом стиле:)
Судя по фотке двиг спереди и занижение, четкая машинка
Он реален? или ФШ? Красивый…скорее шутинбрейк, чем сарайка)
а мотор вперед переехал?))) зачем уши вентиляции оставили? но смотрится кстати не плохо)
по отражениям на стеклах не сказал бы.
Посмотри на ветки)))
Что то я смотрю на ветки и не понимаю, что не так? Ткните пальцем куда смотреть.
по отражениям на стеклах не сказал бы.
там упоминают еще розовый.не могу найти фотки
Хозяйственная постройка каркасным способом
Данный способ дает возможность возвести сарай на даче своими руками, практически за несколько дней. Деревянный брус устанавливается на ранее подготовленный фундамент и закрепляется при помощи анкерных болтов, заранее вмонтированных в фундамент. Поверх бетонного основания фундамента укладывается гидроизоляционный материал.

Сборка каркаса начинается с установки угловых, вертикальных столбов, закрепленных на основание с помощью специальных стальных уголков.


После окончания работ по обвязке, приступают к усилению общего каркаса. Для этих целей устанавливают постоянные укосины на угловых столбах. Они придают достаточную жесткость будущих стен, и достаточно хорошо держат ветровую нагрузку.

Подготовительный этап
Необходимо сделать планировку дачного участка с определением расположения объекта. Сарай должен быть построен на свободной территории. Рекомендуется не возводить помещение в низине: обильные атмосферные осадки могут затопить строение. Расположение сооружения необходимо спланировать так, чтобы оно было отдалено от жилых помещений. Соблюдение границ раздела с соседним участком — вот еще одно условие, учитывать которое необходимо при выборе места для возводимого объекта.
Далее следует составить чертеж проектируемого сарая, в котором должны быть точно указаны все размеры. Проект можно составить самостоятельно или прибегнуть к посторонней помощи.
Заключительный этап — составление списка строительных материалов, необходимых для возведения объекта. Их количество будет зависеть от технологии строительства и габаритных размеров постройки. Каждый сам может решить, из какого материала дешевле построить сарай.
Что сначала?
Семья, о которой шла речь, до того никаких стратегических способностей в себе не обнаруживала. Действительно, не умея вникать в мелочи, невозможно охватить проблему глобально и добиться успеха. Незатейливый сарайчик может дать тут бесценный опыт, если сразу воспринять его как первоначало и первооснову будущего благополучия. В общем, хотя сам по себе сарай несложен, к постройке его нужно отнестись со всей ответственностью. Особенно – к подготовке строительства. Поэтапно подготовка к постройке сарая происходит следующим образом:
Ориентируемся на месте, разговариваем с соседями. Цель – найти наилучшее место для сарая: чтобы был не очень далеко, но и не торчал перед глазами и укладывался в санитарные нормы по расстояниям до источников водоснабжения и др. подверженных загрязнению объектов (жилые дома, посадки сельхозкультур, особенно корнеплодов);
Вдруг по п. 1 ясности нет, строим сарай либо передвижной, либо времянку из дешевого бросового материала. Тем не менее, сарай на даче из горбыля или досок б/у возможно построить достаточно долговечным, недорого и несложно облагородить до придания ему вполне приглядного вида, см. далее;
Если с местом под сарай определились сразу, выбираем тип верхнего строения с учетом возможности обзаведения домашними животными;
Подбираем к «коробке» крышу;
Определяем тип фундамента;
Проектируем сарай с привязкой на местности
Последнее особо важно, т.к. надзорные органы с источниками загрязнений не церемонятся;
Сводим (подбиваем) смету на строительство и оформление;
Возможно, корректируем проект, если сарай в бюджет не вписывается;
Также, возможно, рассматриваем вариант самостроя с последующим узакониванием
Если сарай заведомо укладывается в СанПиНы (Санитарные Правила и Нормы), то так выйдет дешевле и проще, чем строить изначально по проекту;
Закупаем материалы, строим.
Как быть с проектом?
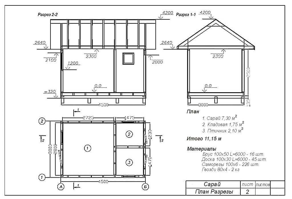
Сарай – легкое быстровозводимое не отапливаемое нежилое строение, из чего следуют важные облегчающие дело следствия. О них для строительства речь впереди, а пока нужно знать, что при оформлении/узаконивании наибольших придирок и сложностей следует ожидать по привязке на местности в соответствии с СанПиНами. Собственно проект сарая должен включать в себя листы с фасадами, план с разрезами, см. след 2 рис. и план-схему фундамента со спецификацией материалов на него, как на рис. с план-разрезами.

Лист фасадов из проекта сарая
Как правило, бесплатные проекты сараев из рунета утверждаются безо всякого и потом никто никогда не проверяет досконально, что там на самом деле построено. Похоже на проект, и ладно. Отклонения от проекта в строительстве допустимы, а в «мелкострое» для себя и без согласования можно обойтись. Но вот план-схему расположения на участке изучают очень внимательно, как и планы соседских участков и их согласия на строительство. Так что позаботьтесь собрать эти бумаги заранее, они действительны 3 года.

Лист план-разрезов из проекта сарая
Возможно, въедливый чинуша потребует еще лист с конструкцией каркаса, т.к. нежилое-то оно нежилое, но люди туда заходят. На такой случай для образца – чертежи на рис. Кстати, это совсем неплохая сарайка для 6-соточной дачи. На крайний случай там и спать можно, улегшись по диагонали.

Каркас мини-сарая для маленького участка
О временных сараях
Добротный деревянный сарай без фундамента весит до тонны; с односкатной крышей и если строить аккуратно, но не по-купечески, можно уложиться в полтонны. Передвигать его на катках по слегам, см. рис., подваживая ломом, можно вдвоем. Чтобы поднять и поставить на основание с помощью лямок (веревок), хватит 10-12 крепких мужиков. Хотя как знать, не обойдется ли последующее угощение для этой оравы дороже аренды автокрана…

Передвижение сарая на катках
К чему это, кроме того, что спервоначала строить можно где угодно? К тому, что в таком случае проект нужен не более, чем для собачьей будки, а для нее он не нужен вовсе. Если год простоит, то потом, на фундаменте, узаконят, лишь бы в СанПиНы вписывался.
Однако тут встает вопрос уже для себя: а как на фундамент ставить? Надо бы на анкеры посадить, но не разбирать же постройку, чтобы сквозь венец их протолкнуть? Есть способ, о нем см. далее.
Как построить сарай из пеноблоков своими руками?
В случае если владелец земельного участка решил завести домашних животных или птиц, то практичнее всего построить сарай из пеноблоков. Данный вид постройки хоть и обойдется не так дешево, как каркасный вариант, но может прослужить хозяину не один десяток лет.
Однако к строительству сарая из пеноблоков необходимо подготовиться основательно, чтобы правильно рассчитать количество материала. Для этого составляется проект здания и разрабатывается чертеж с максимально точными данными.
Размеры строения.
Подготовка фундамента
Строительство начинают с подготовки грунта под закладку ленточного фундамента. Для этого необходимо на выбранном участке поставить разметки согласно проекту помещения, и по ним выкопать траншеи, глубина которых должна быть не более 0,8 м. По ширине они делаются на 5-10 см больше, чем толщина стен.
Бетонное основание.
Далее по всей длине траншеи устанавливается опалубок, дно которого засыпается гравием или мелким щебнем на высоту около 0,2 м. После чего на него накрывается слой рубероида, чтобы в дальнейшем цементирующий раствор не впитался в землю.
Однако перед этим необходимо сделать каркас из арматуры в виде короба и установить внутрь траншеи. Затем в цемент добавляют песок или гравий и заливают по всей длине опалубка. При этом высота бетонного фундамента должна выступать из поверхности минимум на 0,1 м.
Возведение стен
После того как цементный раствор полностью застынет, можно приступать к возведению стен. При этом следует помнить, что с момента закладки фундамента должно пройти около месяца.
Стены.
По истечении данного периода основу накрывают двумя слоями рубероида и начинают укладывать на них пеноблоки, предварительно обмазывая их специальным клеевым средством, который можно приобрести в любом строительном супермаркете. Возводить стены следует с углов, постепенно двигаясь в разные стороны.
Строительство кровли и внутренняя отделка
После того как стены сарая построены, можно приступать к возведению кровли. На такое здание устанавливается односкатная или двускатная крыша в зависимости от предпочтения хозяина строения.
Односкатная крыша.
Диагональная двускатная крыша.
Для правильного распределения нагрузки на стены (пеноблок считается достаточно мягким материалом) на них укладываются деревянные брусья и прибиваются балки перекрытия. После чего наверх ставится стропальная система крыши, которая чаще всего укрывается рубероидом, профнастилом или шифером.
Покрытие пола сарая будет зависеть от того, какие животные будут там содержаться. Например, для птиц укладывается глина с соломой, а для коз пол следует накрыть досками.
Чтобы построить сарай своими руками дешево, вовсе не обязательно переплачивать за какие-либо консультации или иметь опыт в строительстве. В интернет-сети можно найти немало видеороликов, в которых специалисты пошагово рассказывают новичкам, как возвести строение самостоятельно.
Построенный своими руками сарай не только сэкономит денежные средства, но и процесс от строительства станет увлекательным и интересным времяпрепровождением для самого хозяина помещения и для его близких.
Устройство крыши
Чтобы сделать односкатную крышу, потребуются деревянные доски, сечение которых должно быть 5 х 10 см. Из них будут выполняться стропила сарая. Рекомендуется конструкцию делать на полу или земле, чтобы потом в готовом виде фиксировать ее на стойках каркаса. Расстояние, на котором должны крепиться друг от друга стропила, составляет 70-80 см. Чтобы возвести обрешетку, следует необрезные доски установить с зазором примерно 15 см. Однако такая дистанция устанавливается в том случае, когда будет использоваться шифер на крыше. Если же применяются рулонные изделия, то шаг обрешетки должен быть 2-3 см.
Как дешево построить сарай своими руками без стропил? Для этого балки перекрытия требуется положить на верхнюю обвязку под уклоном. Они заменят стропила.
Двускатная крыша возводится, если будет строиться чердак. Для этого надо треугольные стропила закрепить к верхней обвязке каркаса, стенки которого должны быть одной высоты.



















































